Наша компания является разработчиком уникального продукта - мобильных модульных домов из клееного бруса по каркасной технологии.
Данный дом – идеальное решение для вашей молодой семьи, который можно установить на вашем участке всего за 1 день и начать жить в комфортном доме уже сразу после покупки земельного участка. Приятным подарком от нашей компании станут винтовые сваи для установки дома вашей мечты! Его можно использовать на время строительства основного дома, а по его завершению наш дом можно продать, использовать как гостевой или сделать из него баню! Также возможно расширить полезную площадь, приобретя дополнительный модуль и объединив их в один большой дом.
По вашему желанию размер дома может меняться за счет уменьшения или увеличения ширины дома. Минимальная ширина 2м 45см, что соответствует транспортным габаритам. Данный дом является габаритным грузом и может быть доставлен в любую точку России по вашему желанию. Площадь такого дома составит 26 м2. Стандартный дом имеет ширину 3м 40см и его площадь составляет 31,7 м2. Перевозка такого дома возможна на низкорамном прицепе, так как груз является негабаритным. По вашему желанию ширина модуля может быть увеличена до 4м 30см.
Покупая наш дом – вы выгодно инвестируете деньги! Его можно установить на территории туристической базы и выгодно сдавать в аренду, обеспечивая стабильный доход от 30 тысяч рублей в месяц, а наши специалисты подготовят для вас выгодное предложение по размещению вашей недвижимости в доверительное управление.
Преимуществам нашего дома являются:
Наша компания является разработчиком уникального продукта - мобильных модульных домов из клееного бруса по каркасной технологии.
Данный дом – идеальное решение для вашей молодой семьи c с детьми. Данную модель который можно установить на вашем участке всего за 7 дней, соединив 2 типовых модуля Dream House. После подключения к сетям коммуникации Вы сможете жить в комфортном доме уже сразу. Приятным подарком от нашей компании станут винтовые сваи для установки дома вашей мечты! Его можно использовать на время строительства основного дома, а по его завершению наш дом можно продать, использовать как гостевой или сделать из него баню! Также возможно расширить полезную площадь, приобретя дополнительный модуль и объединив их в один большой дом.
По вашему желанию размер дома может меняться за счет уменьшения или увеличения ширины дома. Минимальная ширина модуля 2м 45см, что соответствует транспортным габаритам. Данный дом является габаритным грузом и может быть доставлен в любую точку России по вашему желанию. Площадь такого дома составит 49 м2. Стандартный модуль имеет ширину 3м 40см и его площадь составляет 62,5 м2. Перевозка такого дома возможна на низкорамном прицепе, так как груз является негабаритным. По вашему желанию ширина модуля может быть увеличена до 4м 20см. Площадь данного дома составит 80 м2.
Данный дом имеет несколько планировок на выбор:
* Дом может быть оснащен дополнительным модулем веранды
Покупая наш дом – вы выгодно инвестируете деньги! Его можно установить на территории туристической базы и выгодно сдавать в аренду, обеспечивая стабильный доход от 45 тысяч рублей в месяц, а наши специалисты подготовят для вас выгодное предложение по размещению вашей недвижимости в доверительное управление.
Наша компания является разработчиком уникального продукта - мобильных модульных домов из клееного бруса по каркасной технологии.
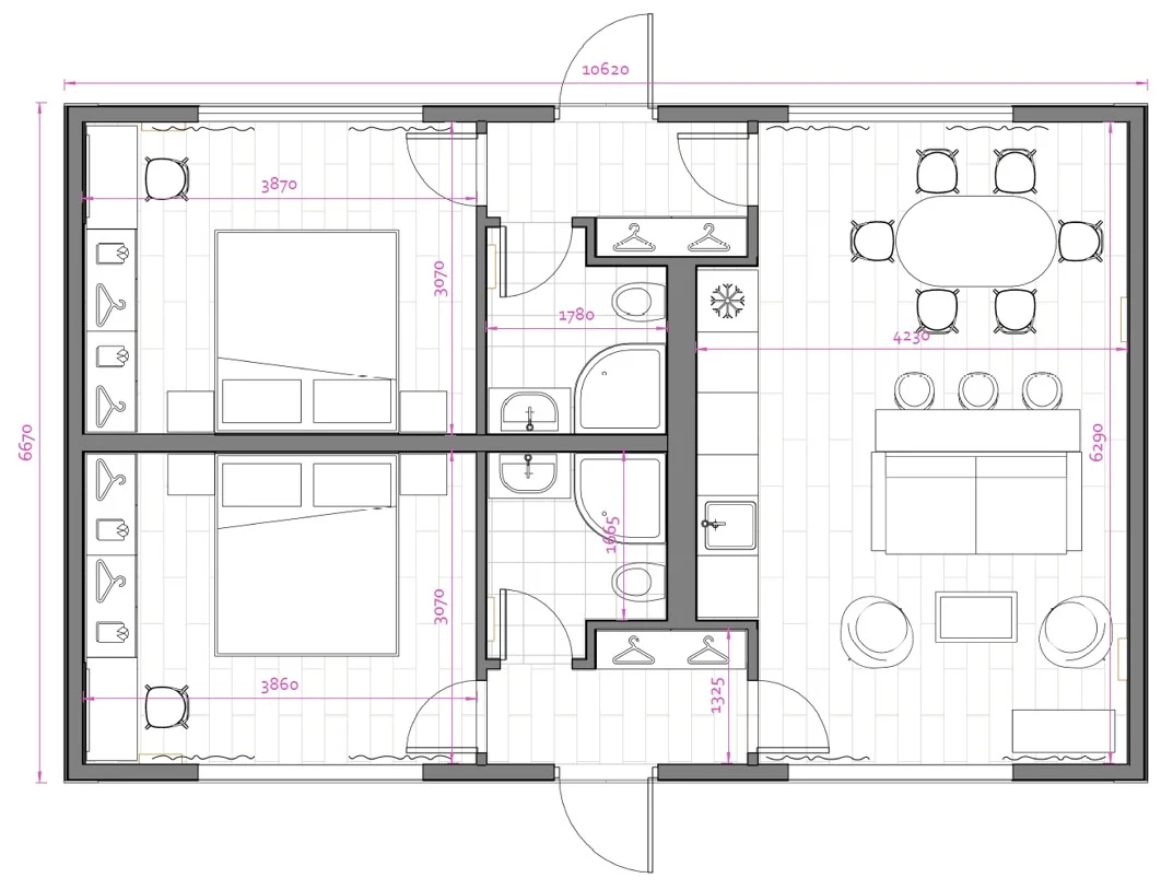
Данный дом – идеальное решение для вашей молодой семьи c с детьми. Данную модель который можно установить на вашем участке всего за 14 дней, соединив 3 типовых модуля Dream House. После подключения к сетям коммуникации Вы сможете жить в комфортном доме уже сразу. Приятным подарком от нашей компании станут винтовые сваи для установки дома вашей мечты! Его можно использовать на время строительства основного дома, а по его завершению наш дом можно продать, использовать как гостевой или сделать из него баню! Также возможно расширить полезную площадь, приобретя дополнительный модуль и объединив их в один большой дом.
По вашему желанию размер дома может меняться за счет уменьшения или увеличения ширины дома. Минимальная ширина модуля 2м 45см, что соответствует транспортным габаритам. Данный дом является габаритным грузом и может быть доставлен в любую точку России по вашему желанию. Площадь такого дома составит 75 м2. Стандартный модуль имеет ширину 3м 40см и его площадь составляет 93,5 м2. Перевозка такого дома возможна на низкорамном прицепе, так как груз является негабаритным. По вашему желанию ширина модуля может быть увеличена до 4м 20см. Площадь данного дома составит 120 м2.
* Дом может быть оснащен дополнительным модулем веранды
Покупая наш дом – вы выгодно инвестируете деньги! Его можно установить на территории туристической базы и выгодно сдавать в аренду, обеспечивая стабильный доход от 60 тысяч рублей в месяц, а наши специалисты подготовят для вас выгодное предложение по размещению вашей недвижимости в доверительное управление.
Преимуществам нашего дома являются:
Наша компания является разработчиком уникального продукта - мобильных модульных домов и мини-отелей из клееного бруса по каркасной технологии.
Данный дом – идеальное решение для вашего бизнеса. Данную модель которую можно установить на вашем участке всего за 30 дней, соединив 4 типовых модуля Dream House. После подключения к сетям коммуникации Вы сможете начать зарабатывать уже сразу. Приятным подарком от нашей компании станут винтовые сваи для бизнеса вашей мечты! Также возможно расширить полезную площадь, приобретя дополнительный модуль и объединив их, расширяя свой отель
По вашему желанию размер модуля может меняться за счет уменьшения или увеличения его ширины. Минимальная ширина модуля 2м 45см, что соответствует транспортным габаритам. Данное строение является габаритным грузом и может быть доставлен в любую точку России по вашему желанию. Площадь такого мини-отеля составит 100 м2. Стандартный модуль имеет ширину 3м 40см и его площадь составляет 130,5 м2. Перевозка такого дома возможна на низкорамном прицепе, так как груз является негабаритным. По вашему желанию ширина модуля может быть увеличена до 4м 20см. Площадь данного мини-отеля составит 165 м2.
* Дом может быть оснащен дополнительным модулем веранды
Покупая наш мини-отель – вы выгодно инвестируете деньги! Его можно установить на территории туристической базы и выгодно сдавать в аренду, обеспечивая стабильный доход от 100 тысяч рублей в месяц, а наши специалисты подготовят для вас выгодное предложение по размещению вашей недвижимости в доверительное управление.
Преимуществам нашего дома являются:
- Да, пригоден! Более того, по вашему желанию мы можем увеличить толщину стен, пола и потолка до 50см, что сделает дом пригодным для проживания в условиях арктической климатической зоны.
- Наша компания согласует с вами индивидуальный график платежей на период изготовления и монтажа вашего дома, а если вам нужен кредит, то наши специалисты помогут вам подготовить заявку в банк.
- Конечно, можете. Вы можете выбрать любую планировку внутреннего пространства дома. А в случае сборки и монтажа на вашем участке возможно увеличение ширины модуля до 4,2м.
- Изготовление дома занимает до 90 дней с момента заключения договора.
- Дом строится по каркасной технологии. Выбор материала утепления стен, согласовывается с заказчиком.
- Мы используем канадскую технологию. Пирог выглядит следующим образом: Внутренняя отделка, вентиляционный канал, пароизоляция, каменная вата, ветрогидроизоляция, вентиляционный канал, плита ОСП, наружная отделка.
- Можете, если Ваши изменения не влияют, на прочность конструкции. Материалы внутренней и внешней отделки, электрической разводки согласовываются с заказчиком.
- Дом доставляется на ваш участок в собранном виде, если есть возможность для тяжелой техники и длинномерного транспорта проехать к вашему участку. Если такой возможности нет, то наши специалисты соберут дом на вашем участке. Устройство фундамента, септика, подведение водопровода, электроэнергии планируется заблаговременно. Эти работы необходимо выполнить до установки дома, а после установки подключаются ко всем коммуникациям.


















